Caratteristiche
- Piani: 3
- Anno di costruzione: ristrutturato 2000
- Serramenti: doppio vetro - legno
- Riscaldamento: autonomo - radiatori - metano
- Pavimenti: ceramica - parquet
Superficie
- Abitazione: 339 mq
- Locali di servizio: si
- Camere: 7
- Bagni: 5
- Cucina: abitabile
- Cantina: 25 mq
- Balcone: si
- Terrazza: si
- Autorimessa: 43 mq area parcheggio
- Giardino: 3.000 mq
Distanze
- Distanza dal Lago: 8 km
- Distanza da Malpensa: 45 km
- Distanza dalla Svizzera: 55 km
- Distanza da Milano: 90 km
- Vista: scorci di Lago Maggiore
Descrizione
Bella villa con giardino e vista panoramica Gignese
Sulle alture del Lago Maggiore, a pochi chilometri da Stresa, nel comune di Gignese, è in vendita bella villa con ampio giardino.
L’abitazione si trova al limite del centro paese in una delle vie residenziali più belle, in posizione dominante e soleggiata, gode di una vista panoramica e con un piccolo scorcio di lago.
L’abitazione, risalente agli anni settanta del secolo scorso è stata completamente ristrutturata agli inizi degli anni 2000, è suddivisa in tre appartamenti indipendenti, ognuno con il proprio accesso all’ampio giardino.
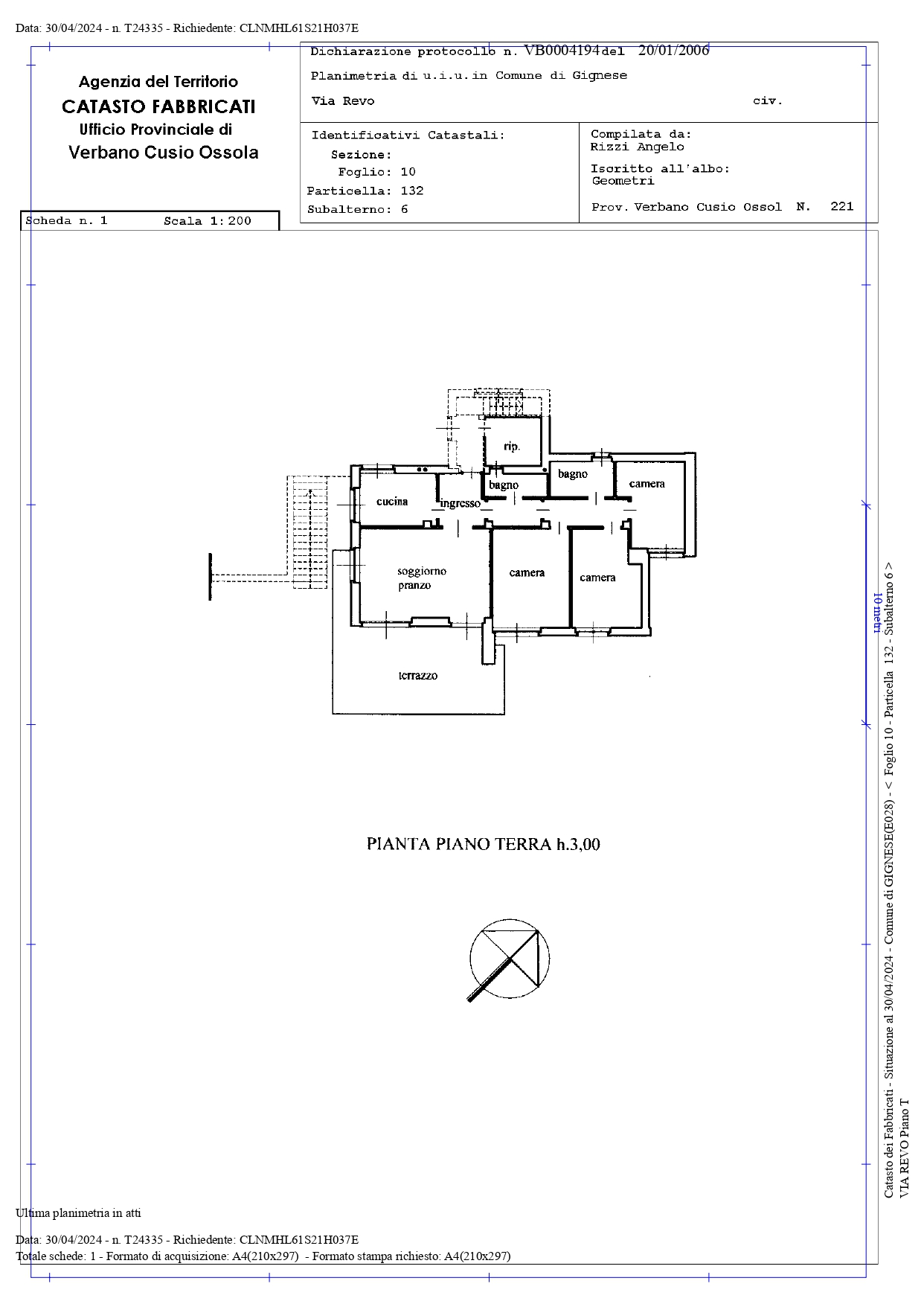
Gli appartamenti sono così composti: al piano terra un grande appartamento con salone, cucina, tre camere e due bagni oltre ad un comodo ripostiglio; al primo piano ingresso disimpegno, salotto a cui si accede ad una ampia terrazza panoramica, cucina abitabile, tre camere, due bagni, un comodo ripostiglio è posto prima dell’ingresso; al piano secondo un bell’appartamento mansardato composto da soggiorno con cucina a vista, camera matrimoniale, bagno e un ampio locale ad uso hobby camera ospiti.
La villa è posta su di un ampio giardino formato da due zone pianeggianti, poste a sud ovest, con possibilità di creare una piscina.
Completano la proprietà un giardino sottostante la strada con un ampio locale servizio, circa 80 mq. e una zona parcheggio ospiti fronte strada.
Gli appartamenti sono indipendenti per quanto riguarda il riscaldamento, ognuno ha il proprio impianto di riscaldamento con caldaia a metano.
La villa è in buonissime condizioni di manutenzione, necessita solo di piccoli interventi, è una proprietà interessante per chi volesse creare un piccolo B&B di charme o per avere una grande proprietà familiare con unità abitative per ogni nucleo familiare.




