Caratteristiche
- Piani: 3
- Anno di costruzione: 1980
- Serramenti: triplo vetro - PVC
- Camino: si
- Riscaldamento: radiatori - metano
- Prestazione energetica: d- 118,61 kWh/m2
- Allarme: si
- Pavimenti: parquet - ceramica
Superficie
- Abitazione: 300 mq
- Locali di servizio: 4
- Soggiorno: 2
- Camere: 4
- Bagni: 3
- Cucina: abitabile
- Taverna: si
- Cantina: si
- Mansarda: si
- Balcone: 2
- Terrazza: 3
- Autorimessa: 4
- Giardino: 1500 mq ca.
Distanze
- Distanza dal Lago: 4 km
- Distanza da Malpensa: 50 km
- Distanza dalla Svizzera: 58 k m
- Distanza da Milano: 89
- Vista: Lago Maggiore
Descrizione
Villa con magnifica vista lago colline di Stresa
Sulle alture di Stresa, con spettacolare vista sul Golfo Borromeo, nella frazione di Someraro, è in vendita bella villa con giardino.
La casa è posta su tre piani fuori terra, ha una giardino in parte terrazzato e in parte pianeggiante, ove è possibile creare una zona relax con piscina.
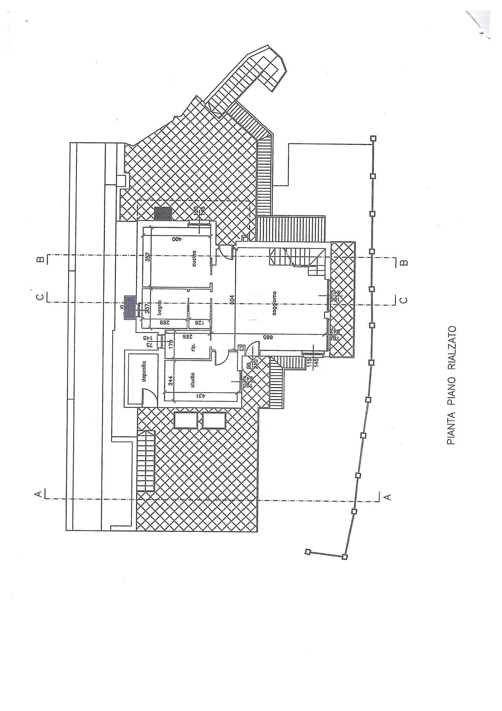
L’abitazione è così disposta: al piano terra un appartamento indipendente, composta da zona giorno con cucina, camera letto, bagno e due locali servizio.
Al piano primo ingresso, grande soggiorno con terrazzo da cui si gode una magnifica vista del Lago Maggiore, cucina abitabile, bagno con doccia e locale uso studio, al piano superiore, locale open space salotto, camera matrimoniale ampio bagno con vasca, camera due letti.
La villa è stata ristrutturata di recente, ha quattro posti auto coperti, e diverse zone terrazzate con porticati coperti e zona pranzo esterna.
Posizione unica con vista totale del Lago Maggiore.



